Вхід на сайт

Ел. пошта:
Пароль:

Реєстрація на сайті

Призвіще: Область:
Ім'я: Населений пункт:
    По батькові: Номер телефону:
    Ел. пошта: Компанія:
      Пароль: Посада:
      Повторіть пароль: Рік початку роботи:
      Фото:
      З правилами розміщення об'єктів погоджуюсь

      Забули пароль?

      Вкажіть ел. пошту — ми надішлемо Вам новий пароль для входу
      Ел. пошта:

      Проблема на сайті

      Закрити
      Ваш e-mail:
      (необов'язково)
      Розкажіть нам, що сталось

      ул. Невельская — Продається будинок

      (г. Кривой Рог, Долгинцевский район)

      25000 $

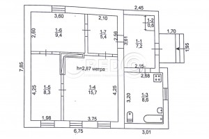
      Загальна площа: 55 кв.м

      Площа ділянки: 8 сот

      Кімнат: 3

      К-ть поверхів: 1

      Продаж будинку, р-н "Ласточка"
      Вул. Добра (Невельська).

      Невеликий район приватного сектору.

      Про об'єкт:
      - загальна площа будинку 55,2 м.кв.
      - житлова площа 33,4 м.кв.
      - господарчі будівлі.
      - літня кухня.
      - земельна ділянка 8 соток

      Планування об'єкту:
      - у будинку три кімнати та передпокій
      - санвузол

      Комунікації:
      - електрика
      - газ
      - вода
      - каналізація - септик
      - опалення - газовий котел

      Матеріал побудови:
      - дім з шлакоблоку та цегли
      - дах металочерепиця
      - вікна замінені на металопластик

      Наша ціна на сьогодні - 25 000$ торг

      За будь-якими питаннями за цією або схожими пропозиціями звертайтесь за номером телефону 068 862 43 57.
      З повагою, АН CREDO

      Надіслати скаргу

      Закрити
      Поскаржитися на об'єкт «ул. Невельская (г. Кривой Рог, Долгинцевский район)»
      Ваш коментар:(Необов'язково)
      Ваша скарга буде надіслана ріелтору, що розмістив об'єкт, а також адміністрації сайту АФНУ.
      Ваше ім'я:
      (Обов'язково)
      Ваш e-mail для відповіді:
      (Обов'язково)

      Вам также могут подойти

      ул. Упита (г. Кривой Рог, Саксаганский район) - Продається будинок, 22000 $ - АФНУ

      Оновлено: 4 вересня

      Розміщено: 1 липня

      Продається будинок

      г. Кривой Рог, ул. Упита

      22000 $

      Літвинова Ірина Вікторівна

      Пропонуємо до продажу повноцінне домоволодіння
      у географічному центрі міста, Саксаганський р-н,
      вул.Творча (раніше Упіта), 62. 1/4 будинку.
      Зручний вихід до вулиць Філатова і Льотчиків.
      Достатьно велика земельна ділянка 7 соток.…

      Детальніше

      Коментарі