Сергія Колачевського — Здається торгівельний майданчик
(г. Кривой Рог, Терновской район)
350 грн. за кв.м.
Загальна площа: 122 кв.м
Поверх: 1
К-ть поверхів: 4
Оренда торгового приміщення - Тернівський р-н - вул. С. Колачевского
Технічні характеристики: - вбудоване в перший поверх 4-х поверхового будинку - окремий вхід - магазин кутовий - "червона лінія" - парковка
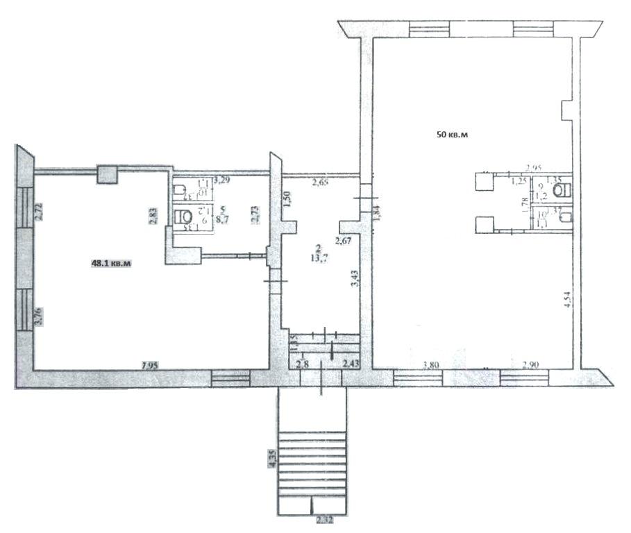
Планування об’єкту: - загальна площа -122,8 кв.м - торгівельна площа два зали - 50кв.м. та 48кв.м - підсобні приміщення - приміщення в стадії реконструкції, тому можливо розглядати як два окремих приміщення - ремонт, канікули та інші питання обговорюємо при зустрічі
Комунікації: - опалення центральне - лічильник на будинку - центральне електропостачання 15кВт; 220 Вт - центральне водопостачання - центральна каналізація
Логістична розв’язка: - приміщення розташоване по "червоній лінії" - поруч зупинки громадського транспорту - житловий масив - поруч комерційний бізнез - великий автомобільний та пішохідний трафік
Додаткові платежі: - електроенергія, вода - лічильник - опалення в зимовий період - вивіз сміття - послуги ЖКХ - інтернет, охорона - послуга агенції - 50 % Оренда - 350 грн/кв.м
За будь-якими питаннями за цією або іншими пропозиціями звертайтесь за номером телефону 067 696 16 51.