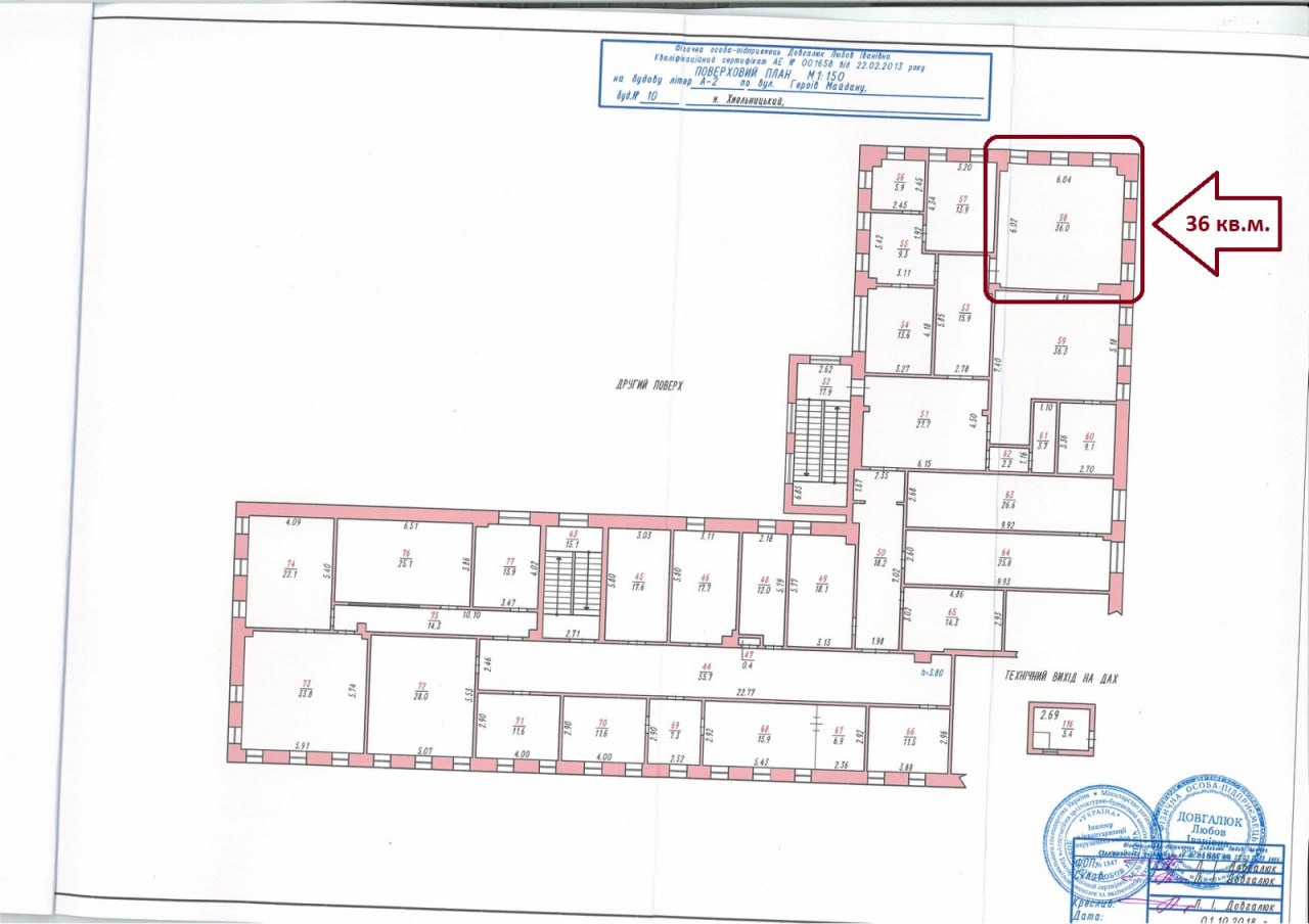
Здам в оренду приміщення 36 м.кв. Центр, вул. Героїв Майдану (Театральна) 10. (Поруч з податковою). 2й поверх. Приміщення Площею 36 м.кв., правильної прямокутної (квадратної) форми, з безліч вікон – дуже просторе і світле. Цілодобовий доступ. Санвузол на поверсі. Без опалення (колись був кондиціонер). Без меблів. В приміщенні ремонт. Світло 24/7 – Не вимикають! Вільне!
Вартість: 5000 грн/міс. + комунальні Оплата 1-й і останній місяць + комісійні (разова оплата агентству). Показ по попередній домовленості.
Оренда комерційного приміщення в Центрі площа 17 м.кв. м. Хмельницький вул. Грушевського 45 на 1-му поверсі. Будівля фасадна. Комунікації: світло яке не виключають, інтернет, вода та санвузол на поверсі. Висока…
Здам в оренду приміщення 30.1 м.кв. Центр, вул. Героїв Майдану (Театральна) 10. (Поруч з податковою). 2й поверх. Приміщення Площею 30.1 м.кв., правильної прямокутної форми 2 кабінети (один з них прохідний),…
Здам в оренду приміщення 17 м.кв. Центр, вул. Героїв Майдану (Театральна) 10. (Поруч з податковою). 1й поверх. Приміщення Площею 17 м.кв., правильної прямокутної форми, з одним вікном (південно-західна сторона). Цілодобовий…