без комісії
вул. Під Голоском, 4 — Продається квартира
(г. Львов, Шевченковский район)
540 $ за кв.м.
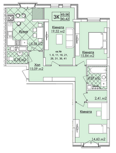
Загальна площа: 46 кв.м
Жила площа: 16 кв.м
Площа кухні: 15 кв.м
Кімнат: 1
Поверх: 4
Розташування Новобудови Львова, Шевченківський р-н Будівельна адреса вул. Під Голоском, 4. До оперного театру 10 хвилин. Усі необхідні документи в наявності Декларація про початок будівництва, містобудівні умови, технічні умови. Статус будівництва (на 10.03.2017) Здача — 3 кв. 2018, виритий котлован Продаж квартир в наявності на 10.03.2017 Здача — 3 кв. 2018 Ціна за м2 540 у. о. 1к від 45.76 м2 2к від 57.92 м2 3к від 86.98 м2 Дворівневі від 88.64 м2
Поверховість 10 Технологія будівництва монолітно-каркасна Стіни цегла Утеплення мінеральна вата, пінопласт Опалення індивідуальне Висота стелі 2,7 м Кількість квартир 140 Паркінг підземний, гостьовий За докладнішою інформацією звертатися за телефоном (067) 748-71-09 Інна