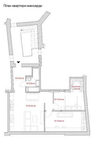
Продаж 2 кімнатної квартири мансарди. Австрійський люкс знаходиться на вул. Лисенка, ближній центр, в тихому, затишному місці на пагорбі. В квартирі зроблений дизайнерський ремонт, використовувалися тільки якісні матеріали. На кухні вбудована техніка привезена з Німеччини фірми Bosch, змішувачі Hansgrohe. Встановлене індивідуальне опалення: газовий двоконтурний котел Valliant. Зроблене просторе планування, велика кухня-вітальна. В квартирі дві окремі спальні: одна головна з дворівневим гардеробом і гостьова. Вікна відомої компанії – Rotto. На підлозі дубовий масив. На вікнах та вхідних дверях виведена сигналізація. В квартирі передбачені виводи під кондиціонер в кожній кімнаті та на кухні. В головній спальні родзинкою є гардероб який зроблений в стелі. Вся побутова техніка і меблі залишаються. Торг для майбутніх власників. Величезним плюсом цієї квартири є тераса площею 10м2 з якої видно увесь Львів.