Вхід на сайт

Ел. пошта:
Пароль:

Реєстрація на сайті

Призвіще: Область:
Ім'я: Населений пункт:
    По батькові: Номер телефону:
    Ел. пошта: Компанія:
      Пароль: Посада:
      Повторіть пароль: Рік початку роботи:
      Фото:
      З правилами розміщення об'єктів погоджуюсь

      Забули пароль?

      Вкажіть ел. пошту — ми надішлемо Вам новий пароль для входу
      Ел. пошта:

      Проблема на сайті

      Закрити
      Ваш e-mail:
      (необов'язково)
      Розкажіть нам, що сталось

      ул. Заливна, 2 — Продається квартира в новобудові

      (г. Харьков, Червонозаводский район)

      43900 $

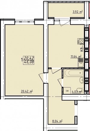
      Загальна площа: 46 кв.м

      Жила площа: 20 кв.м

      Площа кухні: 12 кв.м

      Кімнат: 1

      Поверх: 16

      К-ть поверхів: 16

      Продаєтся 1-кімнатна квартира в новобудові ЖК "Левада-2" по вул. Заливна, 6.
      Поруч з будинком, та в радіусі 2 км. від нього розташовані: метро "Проспект Гагарина", супермаркет "АТБ", супермаркет "Класс" який зараз будується, малі магазини та сфери послуг, зупинка транспорту (800 м); 5 шкіл, до найближчої 1.5 км; 5 дитячих садків. Також є місце де можна і відпочити, це "Гімназійна набережна" (1 км.).
      На территорії самої новобудови, забудовник обіцяє: дитячі ігрові та спортивні майданчики з тротуарами та озеленням.
      Також плануются гостьові парковки і багатоповерховий паркінг.
      -
      Квартира розташована в будинку 3 - зданий, можна приступати до ремонту.
      Площа квартири:
      Загальна площа - 46 м²;
      Житлова площа - 20 м²;
      Кухня - 12 м².
      -
      ПО КВАРТИРІ:
      • потрібен капітальний ремонт.
      КОМПЛЕКТАЦІЯ КВАРТИРИ:
      • встановлені перегородки як зазначено на плані;
      • металопластикові вікна (viknaland);
      • горизонтальна розводка опалення та радіатори опалення (є можливість поставити лічильник на тепло, регулятори на батареї і контролювати подачу тепла в квартиру, індивідуально);
      • вхідні залізні двері;
      • лічильник на електрику;
      • підведені комунікації (холодна, гаряча вода);
      • каналізація;
      • заведено електрику;
      • зроблено зовнішнє утеплення стін (утеплювач мінеральна вата 100 мм).
      -
      Буду радий Вас чути):
      Пн-Пт - 8: 00-20: 00.
      Сб-Нд - II: 00-20: 00
      Святкові дні - вихідний.

      Надіслати скаргу

      Закрити
      Поскаржитися на об'єкт «ул. Заливна, 2 (г. Харьков, Червонозаводский район)»
      Ваш коментар:(Необов'язково)
      Ваша скарга буде надіслана ріелтору, що розмістив об'єкт, а також адміністрації сайту АФНУ.
      Ваше ім'я:
      (Обов'язково)
      Ваш e-mail для відповіді:
      (Обов'язково)

      Коментарі