ул. Барабашова, 16 — Продається квартира в новобудові
(г. Харьков, Московский район)
38300 $
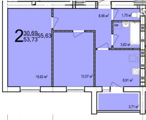
Загальна площа: 56 кв.м
Жила площа: 31 кв.м
Площа кухні: 9 кв.м
Кімнат: 2
Поверх: 8
К-ть поверхів: 9
Продаю двухкомнатную с видом на Журавлёвский гидропарк, квартиру в новострое ЖК Птичка, самого надёжного Харьковского застройщика АО Трест Жилстрой-1, по строительному адресу, переулок Шеченковский 48, дом 1. Квартира находится на восьмом этаже, девятиэтажного дома с наружным утеплением стен. Окна выходят на юго запад, на воду. В квартире установлены металлическая дверь, метало-пластиковые окна, горизонтальная разводка отопления (есть возможность установки индивидуального счётчика) с установкой радиаторов, счётчик электроэнергии. Новый ЖК находится неподалёку от рынка Барабашово. Наличие рядом парка и речки, создает все условия для комфортной и счастливой жизни. Чистая природа в условиях урбанистической зоны будет ежедневно дарить только оптимистические эмоции.В комплексе предусмотрено облагораживание придомовой территории, оборудованные детские площадки, комфортные зоны отдыха и занятий спортом, строительство многоэтажного паркинга, а также выделенная парковочная зона для гостей на придомовой территории. До станции метро Академика Павлова - 15 минут пешком. Оформление проходит в офисе треста Жилстрой-1. Плановая сдача дома в декабре 2021 года, с апреля 2022 года можно приступать к ремонту. Звонки и заявки на просмотры квартир принимаются ежедневно с 9.00 до 19.00.