без комісії
ул. Артема, 26 — Здається торгівельний майданчик
(г. Полтава, Киевский район)
9000 грн.
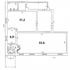
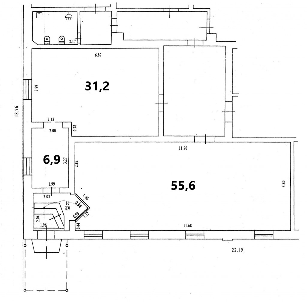
Загальна площа: 98.6 кв.м
Поверх: 1
К-ть поверхів: 1
Оренда салону-магазину по вулиці Симона Петлюри, 26 (стара назва- вул. Артема) загальною площею 98,6 м2 (без кімнати/складу) та 127,1 м2 (з кімнатою/складом)
Характеристика приміщень: - виставочно-торгівельний зал- 55,6 м2; - ресепшн/офіс- 6,9 м2; - офіс- 31,2 м2; - тамбур- 4,9 м2; - кімната/ склад -28,5 м2; - санвузол в загальному користуванні
Опис: - 1-й поверх, окремий вхід з фасаду вулиці, «червона лінія»; - два кондиціонери, охоронна сигналізація; - висота стелі Н= 3,25м; - є огороджений внутрішній дворик та додатково металевий гараж; - охорона та пожежна сигналізація; - потужність електромережі 40кВт; 380V; - опалення- індивідуальні електричні конвектори/радіатори орендарів
Вартість оренди: - 98,6 м2 (без кімнати/складу)- 9000 грн/міс + ком послуги - 127,1 м2 (з кімнатою/складом)- 10000 грн/міс + ком послуги