ул. Косиора — Здається торгівельний майданчик
(г. Кривой Рог, Дзержинский район)
7000 грн.
Загальна площа: 41 кв.м
Поверх: 1
К-ть поверхів: 5
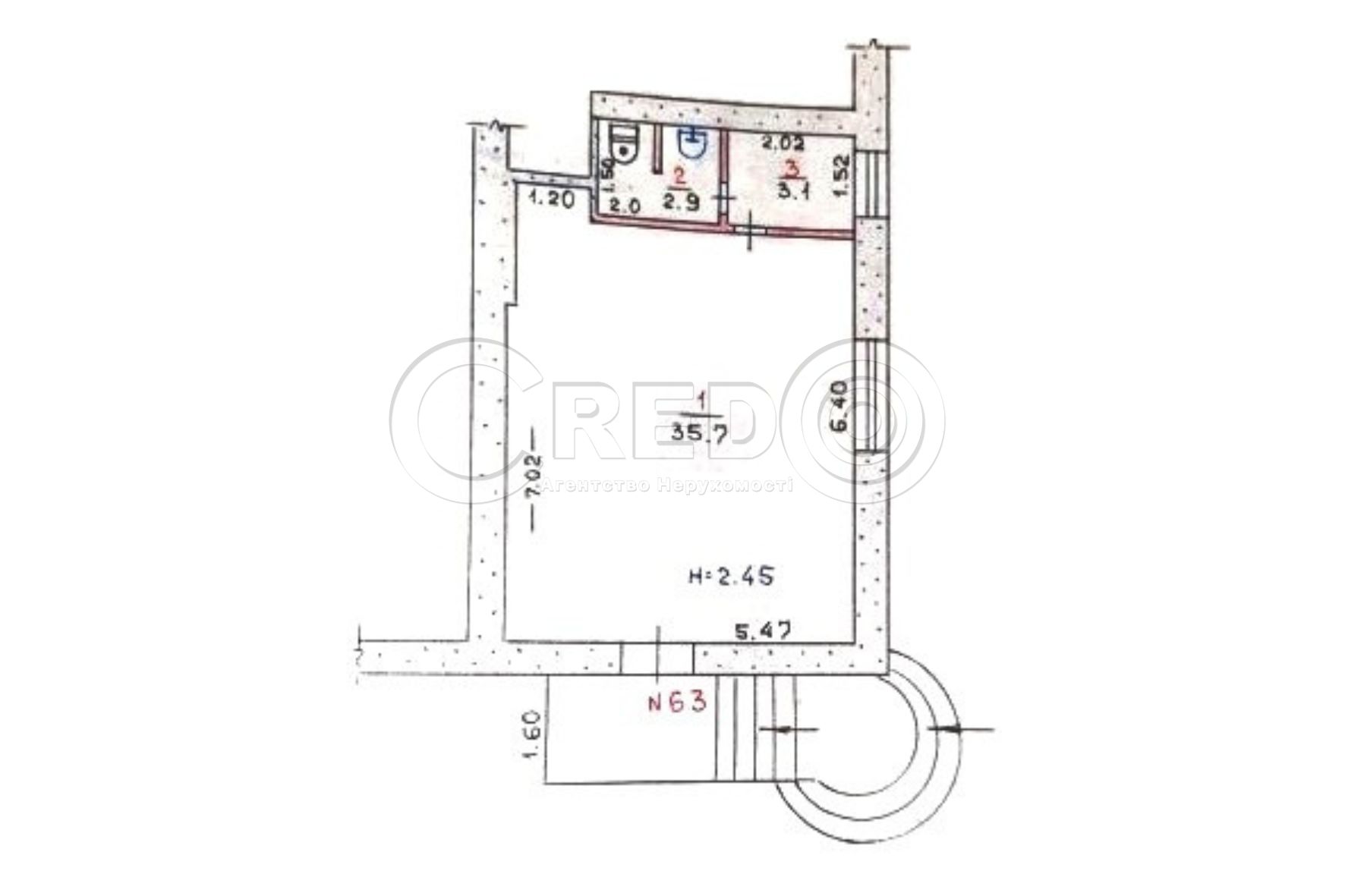
Пропонуємо в оренду магазин на Соцмісті по вул. Соборності, поруч із ТК «Піраміда». Локація з активним пішохідним трафіком ідеально підходить для роздрібної торгівлі, сфери послуг, шоуруму та ін. Технічні характеристики: Загальна площа – 41,7 кв.м Торговельний зал – 35,7 кв.м Приміщення у робочому стані Комунікації: Центральне опалення Водопостачання Санвузол Електропостачання 8кВт Плюси локації: Поруч ТК «Піраміда», ринок Стабільний пішохідний трафік Розвинена інфраструктура району Зручне розташування для клієнтів Оренда 7 000грн + комун. платежі. Вільне з 1 березня. За будь-якими питаннями за цією або схожими пропозиціями звертайтесь за номером телефону 067 638 50 54 З повагою, команда Credo!
Оновлено: 6 лютого
Розміщено: 9 лютого 2023
Вам также могут подойти
Оновлено: 6 лютого
Розміщено: 3 жовтня 2025
площа 20, поверх 1/1
г. Кривой Рог, ул. Косиора
10000 грн.
Літвинова Ірина Вікторівна
ення в робочому стані. Комунікації: - електроенергія - 7кВт, - водопостачання, стоки. Локація: - магазин розташований на території ринку - дуже прохідне місце. Додаткові витрати - Світло, вода - лічильники…
Детальніше
Оновлено: 13 лютого
Розміщено: 18 серпня 2023
площа 48, поверх 1/5
г. Кривой Рог, Петра Калнишевського
10000 грн.
Літвинова Ірина Вікторівна
Пропонується в оренду приміщення по вул. П. Калнишевского (Харитонова), «червона лінія» Про об'єкт: Загальна площа приміщення 48.6кв.м. Особливості: - Один великий торгівельний зал. - Сан вузол. - Підлога – кахель.…
Детальніше
Оновлено: 23 лютого
Розміщено: 8 травня 2025
площа 44, поверх 1/4
г. Кривой Рог, ул. Софьи Перовской
8000 грн.
Літвинова Ірина Вікторівна
Оренда приміщення по вул. С.Перовської, р-н пл. В. Великого Про об'єкт: - Загальна площа - 44кв.м. - Торг.пл.30.2кв.м. Комунікації: - Центральний водопровід. - Електрика. - Центральна каналізація. - Асфальтована дорога.…
Детальніше
Коментарі