без комісії
Грушевського, 71 — Продається промисловість
(пгт. Великие Бирки, Тернопольский район)
370000 $
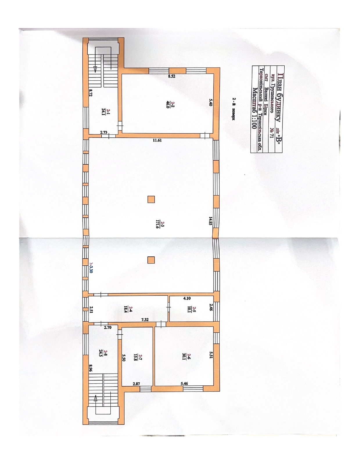
Загальна площа: 1954 кв.м
К-ть поверхів: 2
Продається - приміщення вільного призначення в пригороді Тернополя, а саме в с.Великі Бірки. Це комплекс споруд загальною площею 1728 кв.м. і розташований на ділянці 80 сотих. Ще на території є окремо стоячі складські приміщення площею 70 кв.м та 156кв.м. та будинок охорони (прохідна). Даний об’єкт знаходиться в центральній частині селища до якої є зручний асфальтовий під’їзд. Дана територія повністю огороджена та облаштована бруківкою. Приміщення у хорошому стані та оснащене: витяжними системами вентиляції, системою кондиціювання, пожежним спостереженням, відеоспостереженням, пультом охорони, душовими кабінами. До будівлі заведено всі комунікації, світло, газ, вода, каналізація, інтернет. Даний об’єкт має власну трансформаторну підстанцію із вхідною потужністю електромережі 90 кВт. Територія велика і доглянута з ландшафтним дизайном де продумано і зони відпочинку для працівників і парковки для транспорту. Також на території є укриття, що актуально в цей час. Територія велика, є можливість побудови ще додаткових приміщень для вашого бізнесу (фото розташувань приміщень на ділянці додається). На територію можливий заїзд і фури чи вантажних авто та є можливість виїзду через територію на сусідню вулицю. Також дане приміщення можна придбати з обладнання, за домовленістю, а саме: •Термопласт - автомати для лиття пластмасових виробів різної потужності. •Гілятинні ножиці для порізки металічних листів •Ленточнопильний станок для порізки металу. •Кривошипні преси для обробки металу. •Малярний цех (порошкове покриття) •Цех знежирювання •Зварювальний цех (аргоне зварювання і металічне) •Компресор повітря (розгалуження по першому поверсі) •Кривошипні преси •Швейні машини Даний об’єкт це хороший старт для вашого бізнесу розглянемо всі пропозиції та варіанти щодо купівлі. За більш детальною інформацією телефонуйте.